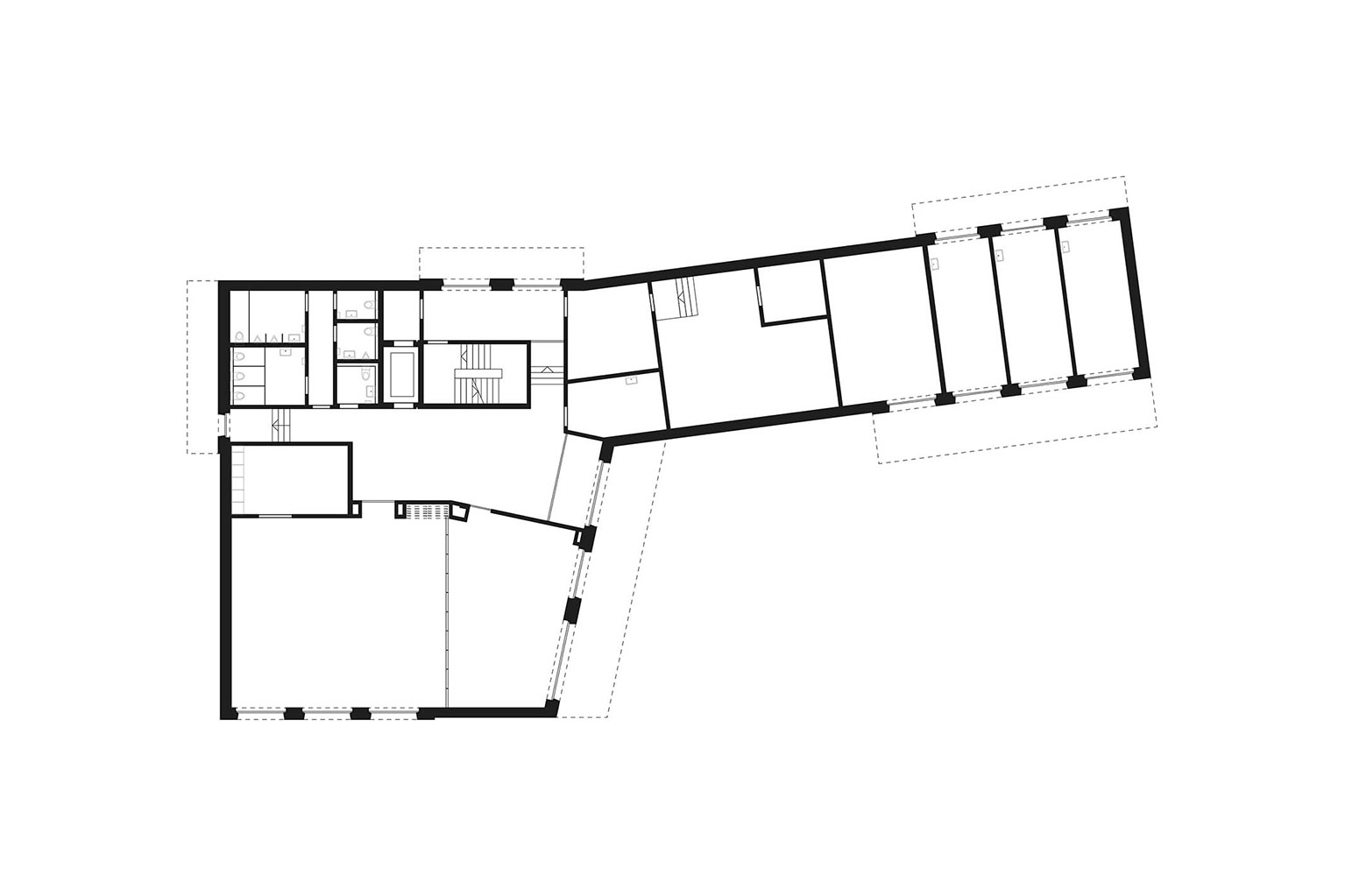
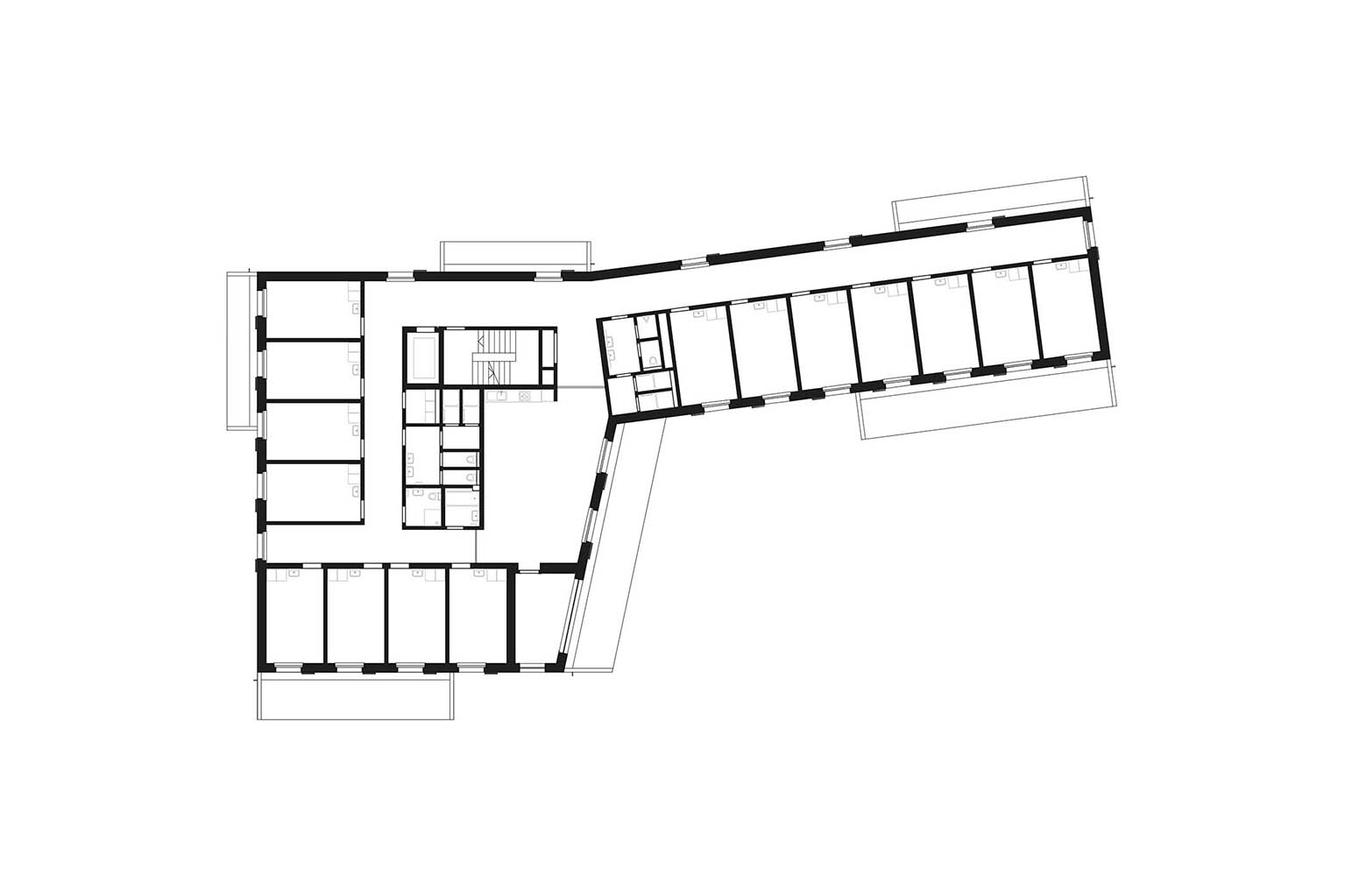
Die bestehende Anlage umfasst mehrere Bauten und dient als Wohn- und Arbeitsort für sozial benachteiligte Menschen. Einige der 50 Doppelzimmer im Altbau wurden in Einzelzimmer umfunktioniert, mit dem Neubau mit 30 neuen Zimmern wurden zusätzlich 20 neue Wohnplätze geschaffen.
Eine bestehende Scheune wurde abgebrochen und an dessen Stelle ein Neubau platziert. Der Neubau fügt sich in die Struktur der bestehenden Bebauung ein und schliesst sie nach Westen ab, wobei die beiden Gebäudeflügel unterschiedlich auf ihre Umgebung reagieren. Der Kopfbau steht in einer Reihe mit den dominanten Gebäuden der Anlage - Hauptgebäude und Schindelhaus - die mit einer Folge platzartiger Aussenräume abwechseln. Der längliche Gebäudeflügel setzt dagegen die parallel zum Hang liegenden Gebäudezeilen fort und liegt an einem schmalen Strassenraum.
Die robuste Gebäudehülle, ein Einschalenmauerwerk, erreicht den Minergiestandard. Die Aussenwände sind mit einem reinen Kalkputz mit Hanffasern verputzt.
Vordächer in Beton führen zu den Eingängen des Gebäudes und schaffen gedeckte Aussenräume vor der Cafeteria, Mehrzweckraum und Freizeiträumen. Die robusten Holzmetallfenster und die Fensterläden aus perforiertem Blech sorgen für sehr geringe Unterhaltskosten. Im Innenausbau werden nur wenige Materialien verwendet. An den Wänden ist ein feiner Lehmputz, Der Bodenbelag ist ein einfacher, geölter und pigmentierter Industrieparkett.
MehrWeniger lesen







