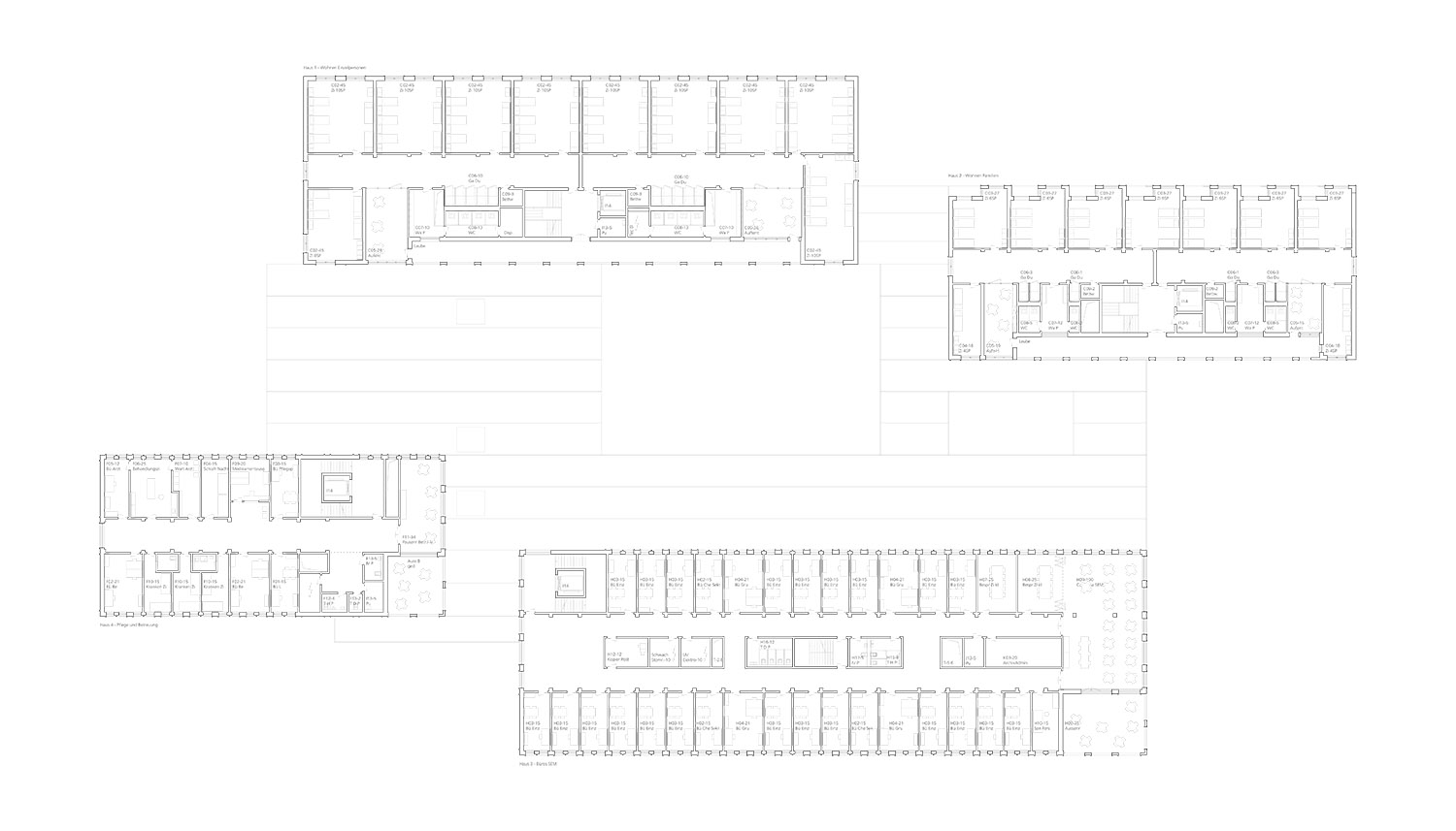
Der Neubau für das Bundesasylzentrum ist in vier Volumen gegliedert und bettet sich als „Weiler“ in die Landschaft ein. Das Ensemble ist in der Höhe gestaffelt. An der Luchsstrasse akzentuieren zwei viergeschossige Zeilen den Eingangsbereich. Der Versatz der beiden Baukörper bildet einen Platz als Eingangssituation. Nach Süden flachen die Bauten ab und schaffen so einen Übergang zur Landschaft.
Gruppiert entlang eines Hofes sind in den einzelnen Häusern die verschiedenen Nutzungen untergebracht. In den beiden Baukörpern auf der Seite des Regionalgefängnisses befinden sich die Büros. Die Büros schaffen einen Puffer zum Gefängnis für die sensiblere Wohnnutzung vis a vis des Hofes.
Die beiden Wohnhäuser können sich so zur offenen Landschaft und zum Hof hin orientieren. Im grösseren Wohnhaus befinden sich die Schlafräume für Einzelpersonen, im kleineren Haus sind separat und geschützt die Zimmer für Familien beherbergt.
Die vier länglichen Hauptbauten bilden unterschiedliche Aussen- und Zwischenräume. Eingeschossige Gebäudeteile schliessen das Ensemble zum Eingang und zum Gefängnis hin ab. Zur offenen Landschaft verbinden überdeckte Aussenbereiche die Bauten.
Die prägnante Silhouette des gefalteten Daches akzentuiert die Ausrichtung der Räume zur Landschaft hin. Die Dächer der eingeschossigen Bereiche verlaufen in Nord-/ Südrichtung und schaffen einen fliessenden Übergang zum Aussenraum.
Die fein gegliederte und in den Höhen gestaffelte Dachlandschaft fügt sich in die Umgebung ein. Vor allem aber verleiht sie dem Bundesasylzentrum ein identitätsstiftendes Bild.
MehrWeniger lesen







